Property Details
Welcome to 43 Richards Road, Narangba…
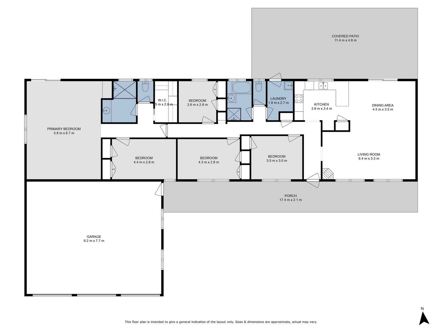
Vacant, freshly painted internally, new hybrid flooring throughout & ready for your family and/or future home based business to move into without delay is this expansive 4+ bedroom, 2 bath, 8+ car accommodation property on a 8,000m2 block.
Located on the fringe of an expanding Narangba Industrial area, within easy distance to the Bruce Highway, Narangba Primary & High Schools, Child Care Centres, Gym, Woolworths & Speciality Shops, Veterinary Clinic, Doctor & Dentist, Sporting Venues and train transport nearby.
Property features include;
> Open lounge & dining area with cathedral timber featured ceilings
> Daikin air conditioner in living area
> VJ timber feature paneling on all walls
> LG Dishwasher, 4 burner gas cooktop & Westinghouse wall oven
> Ceiling fans throughout all rooms
> Master bedroom features walk in robe, spacious ensuite, Air Master air conditioner, access to rear yard and also has an additional bedroom which could be used as a 5th or baby nursery
> All bedrooms have built in robes
> Separate laundry with external access
> New feature lighting and downlights installed throughout
> Security screens throughout
> Triple lock up garage + Additional shed and carport in rear yard
Additional property features include;
> Double Gated secure entrance to the property
> Freshly painted throughout internally
> Rheem gas hot water system
> Solar powered with 24x panels 5.0kw system
> New pump installed for the grey water system
> 3 phase power to rear double garage
> Low maintenance landscaped gardens surround the home
> Front & rear covered patios
The home is situated on a fully fenced, easement free, 8,000m2 block offering side access options as well as additional garages and covered carport/ workshop area for storage items and larger sized vehicles. There is also a small dam at the rear of the property + a cubby house and swing-set for the kids as a bonus extra.
With all that’s on offer here & taking into consideration there’s not a great deal of properties of this Rural Residential calibre and size on the market, we’re expecting immediate interest in this sale.
Be sure to contact Scott Lachmund on 0407 789 801 for more information & to register you attendance to view this opportunity.
Note: Virtual furniture has been used in some of the marketing images.
Land area
8000 sqm (approx)
























































